Modernisation fonctionnelle et technique d’un bâtiment de bureaux

Construit à la fin des années 1980 et implanté au cœur d’une zone d’activité, ce bâtiment de bureaux accueille plusieurs sociétés aux profils variés. Le projet s’inscrit dans une démarche de valorisation de l’existant, visant à renforcer l’attractivité du site tout en répondant aux exigences techniques et réglementaires actuelles.

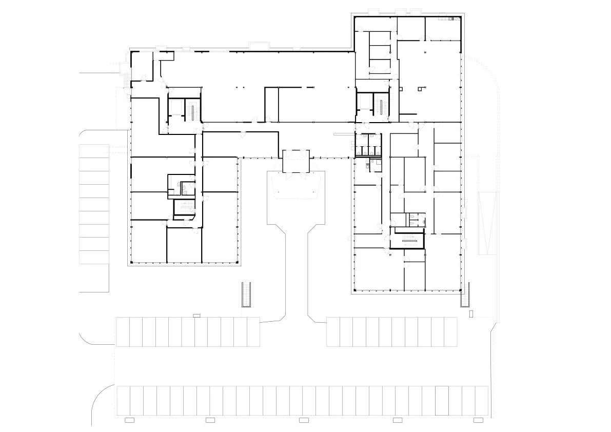
Les interventions portent principalement sur la modernisation des espaces communs, afin d’offrir une plus-value fonctionnelle et qualitative aux entreprises locataires. Les installations de sécurité incendie, de ventilation et de climatisation ont été entièrement mises en conformité, garantissant un niveau de sécurité et de confort conforme aux normes en vigueur.

Le réaménagement des surfaces de bureaux et des zones de circulation permet de proposer des espaces flexibles, adaptés aux modes de travail contemporains et à l’évolution des besoins des utilisateurs. Les travaux ont été réalisés en site partiellement occupé, nécessitant une planification rigoureuse et une coordination étroite avec les occupants. Le mandat couvre l’ensemble des phases SIA, de l’étude à la réalisation.

Données

Statut Réalisé
Localisation St-Sulpice, VD
Date 2023-2025
Maître d'ouvrage Privé
Type Mandat direct
Surface utile 4'500 m²
Phases SIA: 2 à 5
Crédits photo Max Collomb

Prêt à donner vie à votre projet?

Contactez-nous
Précédent
Précédent

L'escargote

Suivant
Suivant

Rénovation d’un appartement historique