Rénovation d’un appartement historique

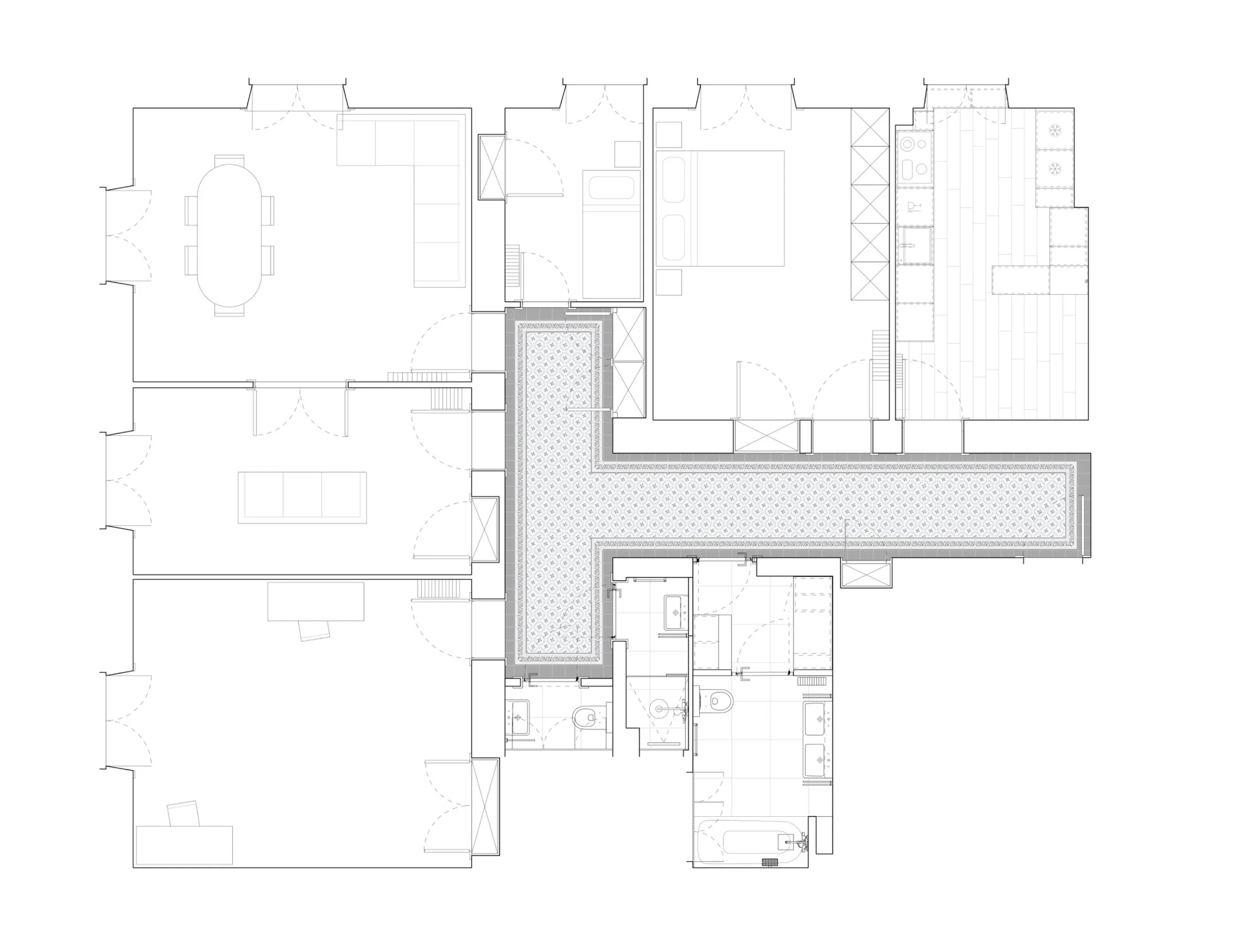
Situé dans le quartier Sous-Gare à Lausanne, cet appartement de 6,5 pièces se distingue par le charme préservé de son immeuble classé, construit en 1905. Les espaces généreux, soulignés par de hauts plafonds et un couloir central distribuant les pièces de vie, témoignent de l’élégance de l’architecture du début du siècle passé.

Le projet de rénovation a consisté en une réorganisation complète des salles d’eau, repensées pour répondre à la flexibilité des modes de vie contemporains, ainsi qu’en la réfection totale de la cuisine, désormais ouverte et lumineuse.

Les interventions ont été guidées par le respect du caractère d’origine : menuiseries, moulures et parquets ont été restaurés avec soin, tandis que les nouveaux éléments, discrets et précis, s’inscrivent dans une continuité harmonieuse entre tradition et modernité. L’ensemble redonne à l’appartement son allure d’époque, enrichie d’un confort actuel.

Données

Statut Réalisé
Localisation Quartier Sous-gare, Lausanne, VD
Date 2025
Maître d'ouvrage Privé
Type Mandat direct
Surface utile 150 m²
Phases SIA: 3 à 5
Crédits photo Max Collomb

Prêt à donner vie à votre projet?

Contactez-nous
Précédent
Précédent

Modernisation fonctionnelle et technique d’un bâtiment de bureaux

Suivant
Suivant

Hissez haut