L’escargote

La nouvelle école primaire de Malley s’insère dans un site en pleine transformation, marqué par un fort héritage industriel. Conçu comme une infrastructure urbaine fédératrice, le projet organise une série d’espaces publics reliant la maison paroissiale, le Gazomètre et le parc au reste du quartier. Les aménagements privilégient biodiversité, gestion intégrée des eaux pluviales et lutte contre les îlots de chaleur.

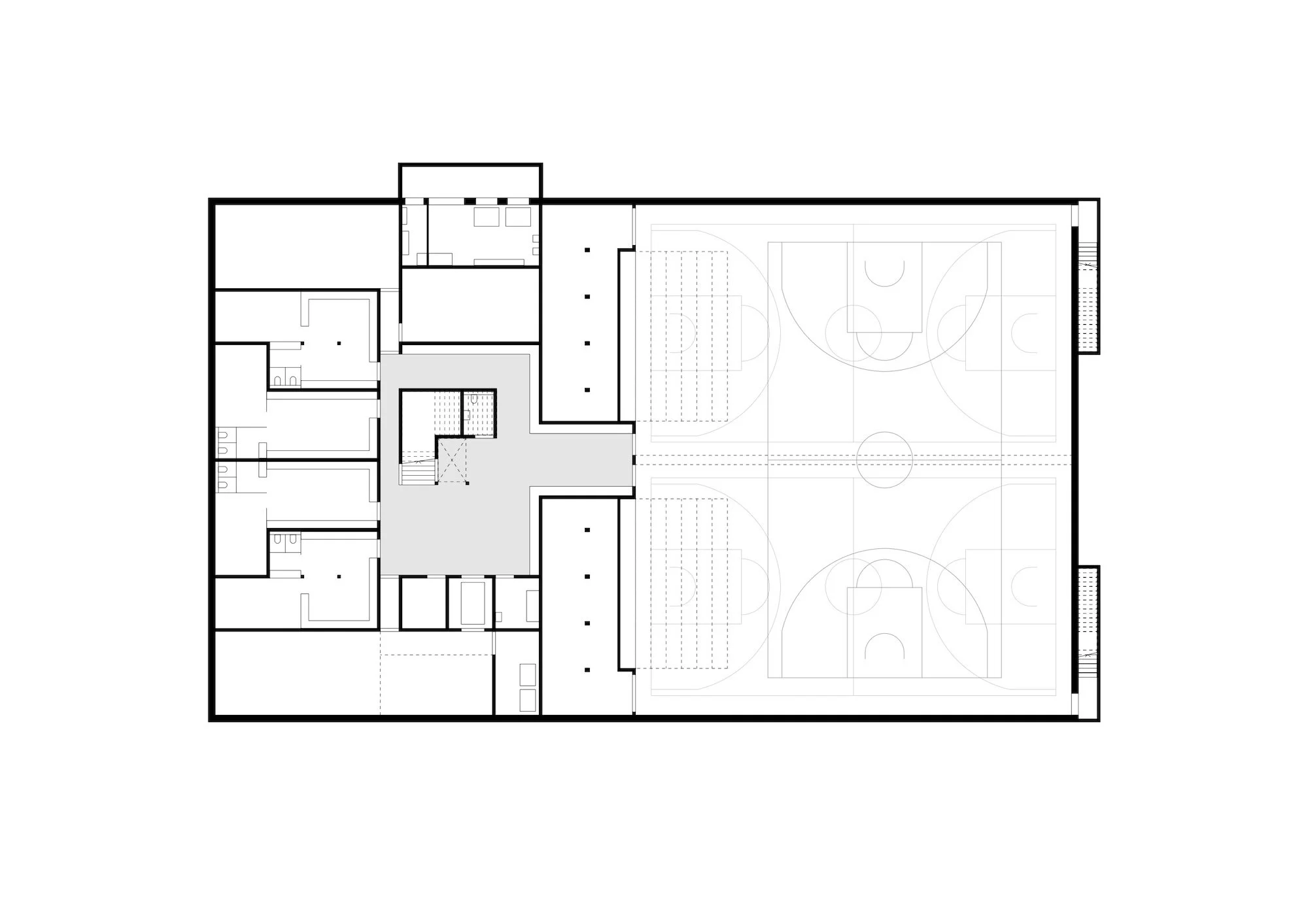
Le bâtiment compact, composé d’une école et d’une salle de sport double, offre des usages polyvalents et des espaces lumineux, favorisant l’apprentissage dans un environnement pensé pour optimiser le bien-être. L’architecture met l’accent sur la durabilité : enveloppe performante, matériaux biosourcés, forte intégration du réemploi, production photovoltaïque et approche low-tech. La structure mixte bois-béton optimise préfabrication, démontabilité et réduction de l’impact carbone.

Le projet valorise enfin le bâtiment paroissial existant et s’accompagne d’une démarche participative, faisant de l’école un lieu d’apprentissage, de rencontre et de mémoire ancré dans son territoire.

Données

Statut Non Réalisé
Localisation Renens, VD
Date 2025
Maître d'ouvrage Ville de Renens / Fabrique de Malley
Type Concours ouvert
Surface utile 4'663 m²
Collaboration: Officina del Paesaggio, MPO, Alpea
Crédits images Mania Estudio

Prêt à donner vie à votre projet?

Précédent
Précédent

Transformation d’un atelier en logement

Suivant
Suivant

Modernisation fonctionnelle et technique d’un bâtiment de bureaux