Renovation of a historic apartment in Lausanne

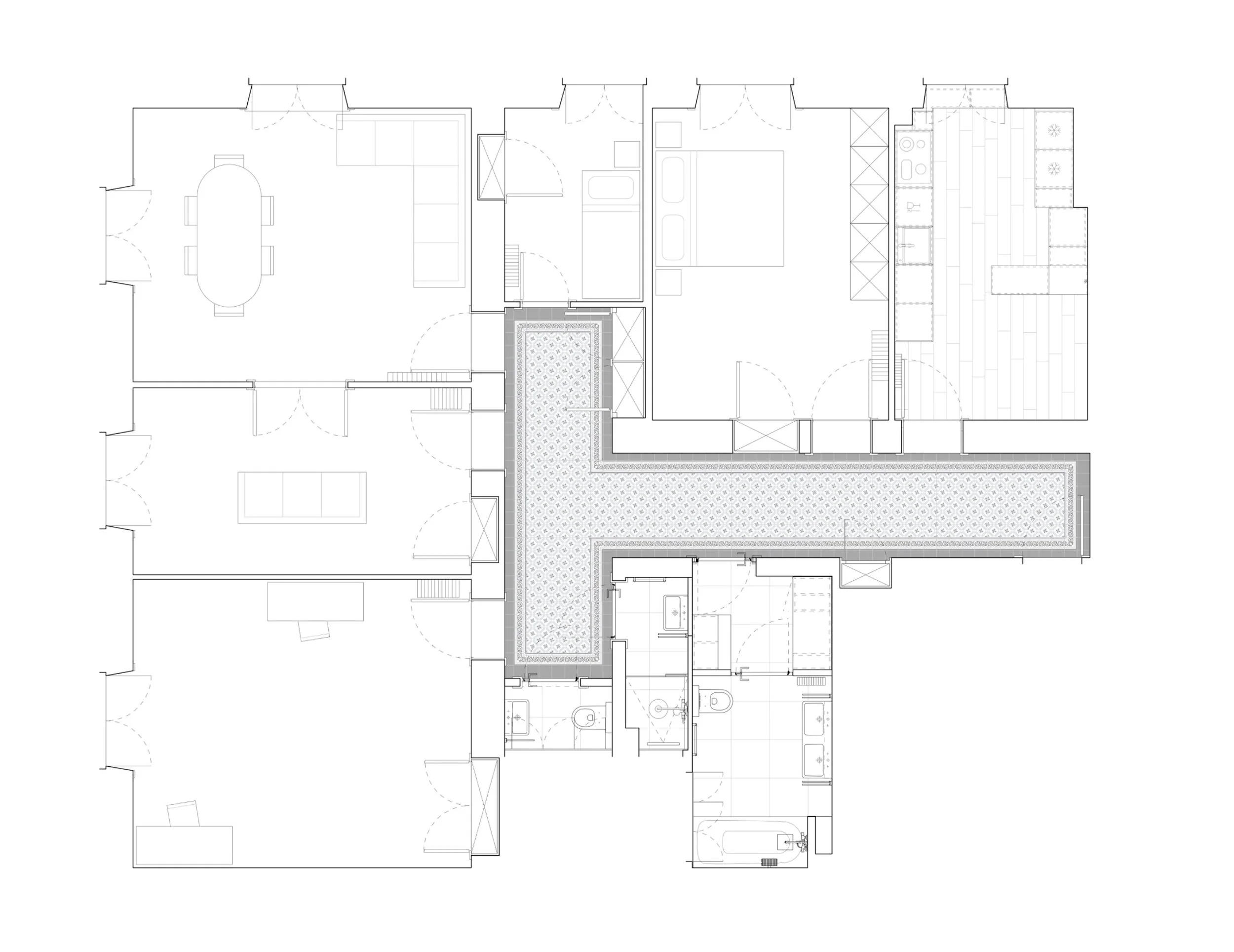
Located in Lausanne’s Sous-Gare district, this 6.5-room apartment stands out for the preserved charm of its listed building, constructed in 1905. The generous spaces, highlighted by high ceilings and a central corridor distributing the living areas, reflect the elegance of early 20th-century architecture.

The renovation project involved a complete reorganization of the bathrooms, redesigned to accommodate the flexibility of contemporary living, as well as the full refurbishment of the kitchen, now open and filled with light.

Every intervention was guided by respect for the apartment’s original character: woodwork, moldings, and parquet floors were carefully restored, while new elements—discreet and precise—were integrated in harmonious continuity between tradition and modernity. The result restores the apartment’s period character, enriched with the comfort of modern life.

Project informations

Status Built
Location Sous-Gare district, Lausanne, VD
Year 2025
Client Private
Type Direct commission
Usable area 150 m²
SIA phases 3 to 5
Photo credits Max Collomb

Ready to bring your vision to life?

Get in touch with us
Précédent
Précédent

Modernisation fonctionnelle et technique d’un bâtiment de bureaux

Suivant
Suivant

Hissez haut