Hissez haut

“Hissez haut” is part of a competition to demolish and rebuild a social housing complex. The project offers a contemporary vision of HBM housing, combining sustainability, social cohesion, and architectural quality. Located on the banks of the Versoix River, it enhances the natural site while complying with regulatory constraints.

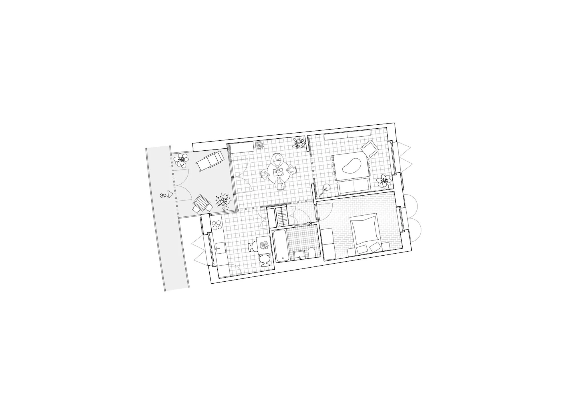
The 30 apartments are served by two stairwells and large outdoor walkways, designed as shared living spaces. The ground floor houses communal areas accessible to all (café, nursery, workshops, etc.), which encourage interaction and a sense of community in the neighborhood. On the roof, a communal room with a lake view provides a gathering place for the entire building. A communal garden extends the ecological richness of the site while promoting conviviality.

By retaining the existing foundations and reusing materials, it significantly reduces its environmental impact. Finally, thanks to its wood-concrete slabs, a breathable envelope, and sober construction choices, the project meets THPE standards while placing uses, quality of life, and respect for living things at the heart of its approach.

Project informations

Status Unbuilt
Location Versoix, GE
Year 2025
Client HBM Jean Dutoit Foundation
Type Open competition
Usable area 2’560 m²
Collaborâtion Atelier Cube, Arrabal
Images credits OUT OF RAM

Ready to bring your vision to life?

Get in touch with us
Précédent
Précédent

Renovation of a historic apartment

Suivant
Suivant

EPFL Innovation Park